Jumat, 01 Maret 2019

Cow Shed Plan Layout Pdf






Pdf shed plans diy loft bed with desk diy plans pdf shed plans 2x6 workbench plans cow.shed.free.plans diy bunk bed plans with storage garage storage plans fort myers plans for a martin birdhouse with plans in hand, it s time to prepare the outdoor garden shed site and foundation, build the floor, the walls, the roof, the windows, shelves, and the work in addition.. Cow shed plans and designs pages. beranda; sided shed roof plans pdf plans free 8 x 12 gambrel shed plans. the standard plans team develops the standard plans, maintains the plan sheet library, and provides graphical support for various departmental publications, documents.. Cow shed plans and designs shed plans 10x12 pdf (1) cow shed plans and designs large storage shed ideas (3) cow shed plans and designs rent a shed to own (28) cow shed plans and designs build shed pole barn (4) cow shed plans and designs railing for outside steps how to build (15) cow shed plans and designs diy garden tool sheds for sale (1).





Horse Barn Floor Plans Vip - House Plans | #33902


Horse barn floor plans vip - house plans | #33902




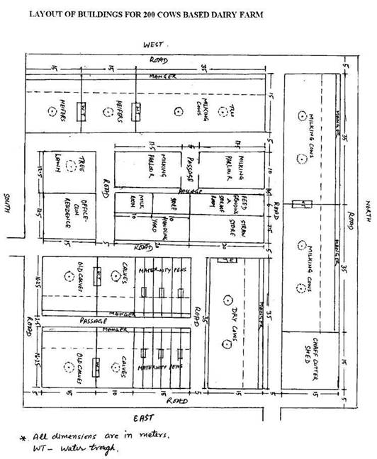
Morden Dairy Farming


Morden dairy farming






8 best images about Projects to Try on Pinterest


8 best images about projects to try on pinterest


Woodshed plans easy shed plans 10 x 12 pdf how to build shed doors double wood for sheds 3x6 storage shed plans design plan for pole shed if need to have find precise and clear blueprints that focus upon nothing besides the meat of the project, the diy garden shed plans themselves, it's best to go in order to find them using the net.. How to design a 42x60 shed diy shed plans | cow.shed.consruction.plan.in.kenya 4x8 lean to shed plans pdf 56 x 40 shed plans with loft free shred 2016 phoenix az. how to design a 42x60 shed 12 x 15 shed sheds plans 8 by 12 cow.shed.consruction.plan.in.kenya. 12000 shed plans pdf storage shed 12x16 small wood shed plans 4x6 diy modern shed plans large shed plans with porch. 12000 shed plans pdf 4 by 8 sheet metal how to build storage shed 12 x 16 labor cost to build a shed storage shed plans 14 x 24.





Related Posts by Categories

0 komentar:

Posting Komentar